Location
Al Hofouf, KSA
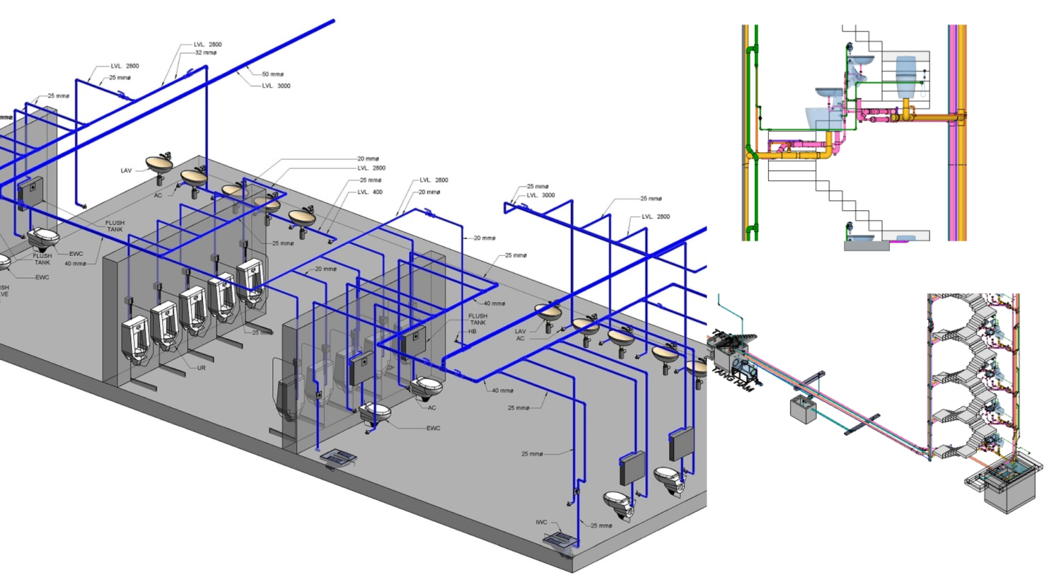
ROSHEN Villas is a comprehensive residential project featuring Revit modeling and detailed shop drawings. The design encompasses architectural, structural, and MEP works, ensuring a seamless integration of functionality and aesthetics. This project reflects precision and attention to detail in every aspect of its engineering.

Al Hofouf, KSA

ROSHEN